M-am întâlnit zilele trecute cu Popescu pentru ca să vizităm viitorul sediu al OAR Bucureşti, o clădire pentru care s-a lansat un concurs de soluţii privind consolidarea şi amenajarea. Având în vedere că în urmă cu aproape trei săptămâni a fost deja o dezbatere publică pe tema dezvoltării imobilului cunoscut sub numele de “Cina”, Popescu m-a tras din nou de mânecă să-mi atragă atenţia că nu m-am ţinut de promisiune şi nu am postat concluziile analizei mele asupra evoluţiei zonei din imediata vecinătate a acestui monument. Mai ales că există destule voci şi acum, care spun că n-ar trebui construit nimic acolo. Unul este dl. Cornea şi pe blogul domniei sale am exprimat câteva puncte de vedere legate de asta. De exemplu, dânsul spune că nu s-ar mai vedea Atheneul dacă s-ar construi ceva pe terenul din C.A. Rosetti nr. 1-3. Am extras imaginea din articolul respectiv pentru a arăta direcţia vizuală buclucaşă. Îi spun eu buclucaşă pentru că şi eu aş putea spune că deja Atheneul nu se vede de la câţiva metri mai departe de punctul de staţie indicat. Am trasat eu cu galben două linii de vizibilitate aşa că, dacă eşti pieton, din punctele respective, învecinate de cel deja reperat de dl. Cornea, Atheneul nu mai poate fi văzut.

Asta înseamnă oare, pe aceeaşi logică a impedimentului vizual, că ar fi cazul să demolăm soclul statuii lui Carol I sau, mai rău, să dăm jos clădirea Fundaţiilor Regale? Sigur că nu, un astfel de argument nu poate fi decât foarte jos pe lista unor constrângeri urbanistice; de luat în calcul dar nu cu efecte atât de radicale încât să dărâmăm sau să interzicem construcţii pe terenuri private, mai ales în lipsa unor compensaţii adecvate pentru proprietarii unor astfel de terenuri. Mai este de spus un lucru important, problema proprietarilor de la Cina este doar de a rezolva un volum potrivit pentru că toate variantele prezentate până acum se încadrează strict în coeficienţii prevăzuţi de regulamentul zonei protejate. Nu vor mai mult pentru hotelul pe care vor să-l facă. Apoi mai este de accentuat că spre mijlocul anilor ’90 monumentul a rămas doar la stadiul de coajă pentru că totul înauntru a fost chiuretat şi refăcut în betoane. Aşadar, din casa făcută de Constantin Boerescu nu au mai rămas decât câteva ziduri exterioare şi alea doar în fragmente.
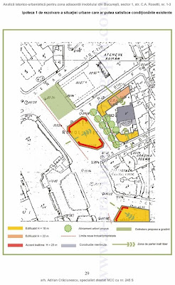
Pentru a putea cumpăni şi a înţelege felul în care s-a ajuns la spaţiul public actual (am mai scris despre asta), am întocmit următorul studiu pentru a cărui parcurgere nu văd altă soluţie decât să deschideţi fiecare imagine într-o altă filă:
Astea sunt concluziile mele şi, dacă ar fi să particip la vreun concurs pentru zonă, sigur aş dezvolta varianta nr. 1 din cele prezentate ca opţiuni.































Nu am înţeles exact de ce ai simţit nevoia, în concluzii, să introduci o stradă între parcela actuală şi clădirile virtuale de pe Calea Victoriei... poate un front continuu şi neutru ar fi mai bun pentru compoziţia spaţiului pentru Ateneu... poate ai avea nevoie doar de o curte interioară generoasă şi publică, cu legătură directă către Cina... altfel, studiul este foarte interesant
RăspundețiȘtergereRaspunsul este destul de simplu. In primul rand, parcelele de odinioara nu mai exista astfel ca azi avem un spatiu public amorf. Asta inseamna ca, daca am presupune ca s-ar construi in front continuu, este posibil ca ani de zile acolo sa nu se construiasca nimic dar asta i-ar condamna pe cei de la Cina sa faca doua betze, cate una la strada Franklin si una la C.A.Rosetti si oferind doua calcane spre piata. Sau, in cel mai bun caz, doua fatade care sa poate fi ulterior obturate prin alipirea virtualei constructii mai mari. Asa, cu o alee de serviciu prevazuta, este posibil ca frontul ala sa fie construit cu fatada de sine statatoare, cu plantatie cu tot, astea putand sa ramana si in cazul edificarii ulterioare a cladirii de la Calea Victoriei. In plus, existenta aleii poate asigura accesul catre un parking subteran mai amplu, pentru piata, ca substitut pentru ce este acum. Mai mult, cladirea respectiva ar putea sa aibe fatade perimetrale. Una peste alta, cred ca o astfel de abordare permite dezvoltarea in pasi distincti, fiecare dintre acesti pasi fiind suportabili estetic si functional si pentru privati si pentru oras.
ȘtergereAdica ce am spus la punctul 6 al concluziilor preliminare din pagina 24 si in primele doua liniute din concluziile finale de la pagina 31 care a fost si ultima.
Ștergere